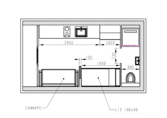
l’image présente le plan du studio GreenPod de 15 m2 Laisser un commentaire / Par Philippe Delage / 10 février 2025 l’image présente le plan du studio GreenPod de 15 m2